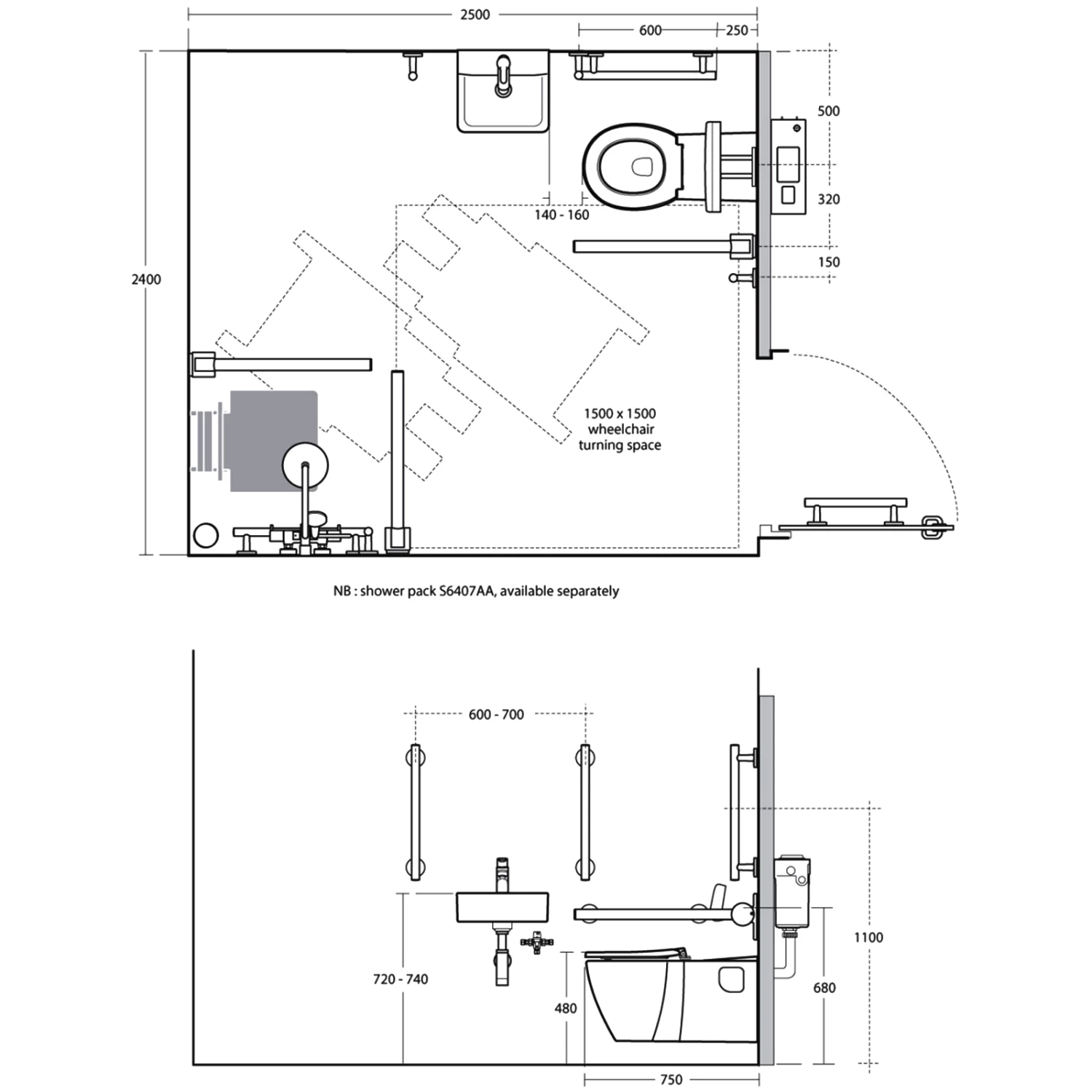
Product Features
- Supplied with layout drawings, detailing the fixing positions necessary for DOC M compliance
- Grab Rail sold separately (See the You May Need)
- Concept Freedom wall hung rimless toilet bowl with horizontal outlet, 750mm projection
- Support bracket for wall mounted WC raised height with bolts
- Concept Freedom seat no cover for elongated pan
- Contemporary 21 hinged support rail, 80cm Doc M Compliant
- Multi-System back support, white, complete with cushion
- Concept Freedom 60cm accessible washbasin, one taphole
- Concept Blue washbasin mixer 1 hole
- TMV Thermostatic mixing valve 15mm
- Trap 1 1/4″ Contemporary metal bottle, 75mm seal
- Waste 1 1/4″ Click plug waste, 80mm slotted tail
- Conceala 2 delay fill 4.5/3 or 4/2.6 litre cistern, dual flush valve, bottom supply, internal overflow, alternative height plastic flushbends
- Karisma flush plate, dual flush, branded for Conceala 2 cisterns
- Contour 21 flushpipe constructed, necessary for installation
- Guarantee: Lifetime (2 Year on all spare parts which are subject to normal wear and tear from the proof of purchase date. Does not cover consequential damage or loss)







































Reviews
There are no reviews yet.